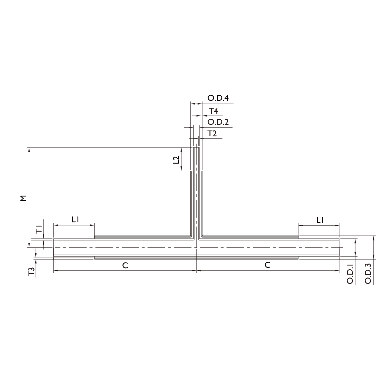
Coaxial double - sleeve pipe reducing tee

The inner pipe is the process pipe. Through strict requirements for process specifications in aspects such as raw materials, electropolishing, cleaning and packaging, it can meet the requirements of high cleanliness and high performance of the ultra-high purity fluid system.

The outer pipe is the safety pipe. In case the inner pipe leaks, the overflowing medium can flow into the safe space.

The double-pipe system only needs orbital welding for installation, which is simple and convenient and can be integrated into existing systems and facilities.


  • Size parameters
  • Product Features